现代中式-清雅美宅
MODERN CHINESE STYLE - ELEGANT AND BEAUTIFUL RESIDENCE

纵使流行稍纵即逝,
然而风格永存
设计说明
DESIGN SPECIFICATIONS
要一个黄昏
满是风和正在落下的夕阳如果你也觉世事繁杂驻足
一起聆听这场关于东方的回想
设计元素 DESIGN ELEMENTS
淡雅 宁静 植物 禅意
ELEGANT TRANQUILITY PLANTS ZEN MIND
材质色系 DMATERIAL COLOR SYSTEM
岩板 木地板 木饰面 墙纸 乳胶漆
QUARTZ SLAB WOOD FLOORING WOOD VENEER WALLPAPER LATEX PAINT
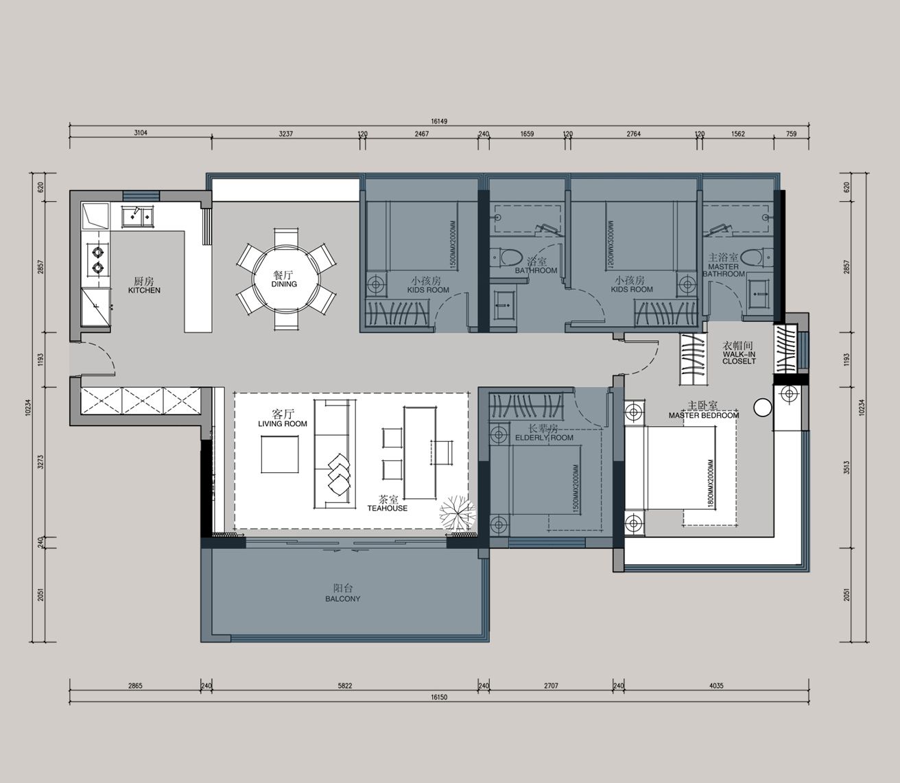
户型平面布置图 PUBLICSPACEDI
家具搭配组合 FURNITURE MATCHING COMBINATION

现代羊羔绒沙发
主体采用米白色羊羔绒面料,
表面自带细腻的颗粒感,触
感柔软亲肤,视觉上温暖柔
和,自带治愈感。
L2220*W890*H720
现代极简方形茶几台面采用浅色岩板 / 大理石,表面
带有自然的浅灰色裂纹纹理,呈现
出细腻的温润质感,兼具耐磨、防
污的实用性。
L800*W800*H280
MODERN CHINESE STYLE -
ELEGANT AND BEAUTIFUL RESIDENCE
现代中式-清雅美宅

客厅 餐厅
客餐厅 SPATIAL EFFECTS
清雅美宅强调与自然的和谐共处,
因此在设计中会注重引入自然元素。
例如,通过大面积的窗户引入自然
光线,让室内充满阳光;摆放绿植或
设置小型水景,增加空间的生机和
活力;使用天然材质的家具和装饰品,
如实木、石材、棉麻等,营造出一
种自然、质朴的感觉。

材质细节
胡桃木饰墙围,云石餐台衬棉麻软椅,
铜条嵌柜角,竹影灯辉映清雅新中式客餐厅

卧室 SPATIAL EFFECTS
清雅美宅的色彩搭配以淡雅、
柔和的色调为主,如米白色、
浅灰色、淡木色等,这些颜色
能够营造出一种宁静、舒适的
氛围。同时,也会巧妙地运用
一些亮色或对比色进行点缀,
如鲜艳的绿植、艺术品的色彩
等,使空间更加生动、有趣。

材质细节
白蜡木框架构床头软包,素色亚麻床品
配竹编灯罩,云石摆件置侧,
清雅国风漫入卧室空间

THREE MAJOR SYSTEMS
三大系统

工艺系统 灯光系统 收纳系统
FIVE MAJOR SECURITY
五大保障

价格保障 质量保障 时间保障 安全保障 效果保障
用心构筑·美一个家
BUIID YOUR DREAM HOUSE
设计&版权@:班威一站式家居智能服务平台
原创内容,不支持任何形式的转载,翻版必究!