获取中...
VR 详情
Product Image

现代海派-高奢海派

一口价 ¥993.0
方案说明
  • 服务范围
    海珠区
  • 小区
    珑璟台
  • 户型
    四室二厅二卫一厨
  • 面积
    143㎡
  • 风格
    现代海派高奢海派
  • 套餐
  • 分享
  • 收藏
  • 1460

预定流程

FLOW PATH

  • 预定方案

    提交联系方式

  • 确定方案

    专人联系确定方案

  • 轻轻贷

    解决资金问题

  • 装修推荐

    多家装修企业选择

  • 签订合同

    线下签合同

  • 空间展示
  • 商品清单

  • 现代海派-高奢海派

    MODERN HAIPAI - LUXURY HAIPAI






    纵使流行稍纵即逝,
    然而风格永存



    设计说明 DESIGN SPECIFICATIONS


    设计说明

    DESIGN SPECIFICATIONS




    东西文化碰撞下勾勒的高奢空间,延续了独特的
    海派质感与腔调,平稳庄重,细节富于变化,
    就像繁盛而多样的花朵,以独特的设计风貌集合
    城市人文底蕴与主任审美格调。









    设计元素 DESIGN ELEMENTS



             复古       东方            多元             文化     
             RETRO      ORIENTAL      MULTICULTURAL    CULTURE










    材质色系 DMATERIAL COLOR SYSTEM




                木饰面            岩板         墙纸            墙纸     乳胶漆           
              WOOD VENEER      ROCK PLATE    WALL PAPER      WALL PAPER       LATEX PAINT

         














    MODERN
    SIMPLICITY







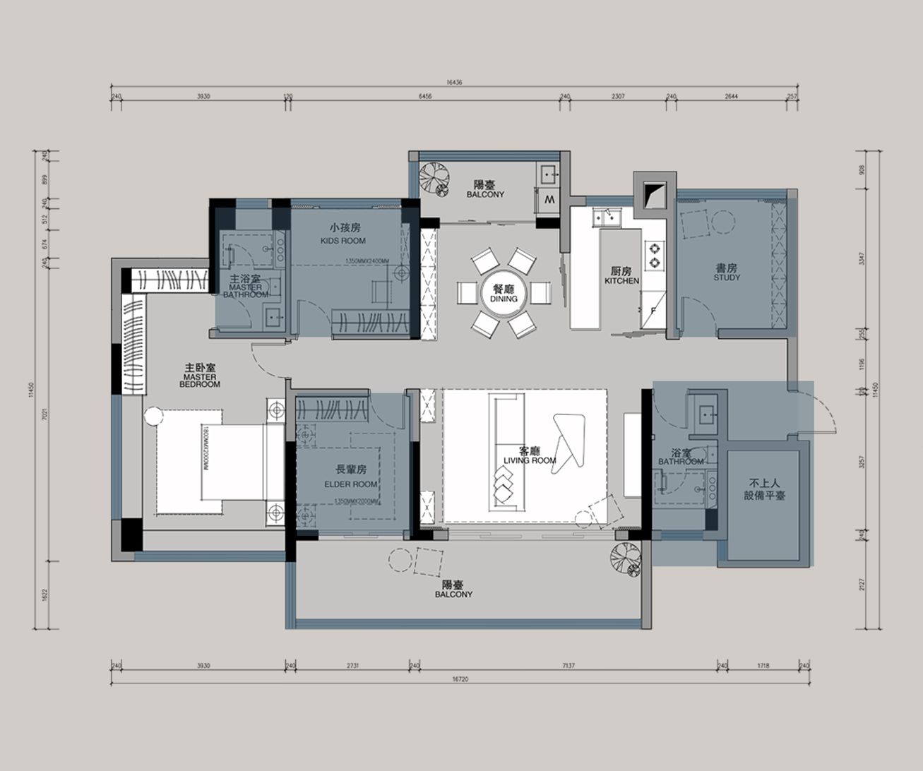
    户型平面布置图 PUBLICSPACEDI










    家具搭配组合 FURNITURE MATCHING COMBINATION





    极简直排布艺沙发

    采用低矮的直排造型,搭配悬浮式金属底座,
    视觉上非常轻盈,弱化了家具的厚重感。右
    侧延伸出一个小台面,可作为边几使用,兼
    具设计感与实用性。

    L2920*D1030*H890




    意式极简异形高低组合茶几

    由一大一小两个不规则流线型台面组成
    高低错落的嵌套式结构,打破了传统茶
    几的方正感,视觉上更显灵动。

    L1250*D750*H400
    L880*D500*H300












    MODERN HAIPAI -
    LUXURY HAIPAI
     



    现代海派-高奢海派








    客厅                                                       餐厅





    客餐厅 SPATIAL EFFECTS


    优美的钢琴曲在光影的缄默中为空间渲
    染一层怀旧滤镜,色彩的碰撞与和谐,
    艺术品的陈列与留白,共同构筑起繁华
    都市中的一方精神乌托邦。用场景的多
    变性挖掘生活的可能性.描绘多样的生活
    场景。








    材质细节

    采用大尺寸的水墨纹岩板,表面为哑光质感,

    自然的灰白黑纹理如同水墨画般,

    奠定了空间的艺术基调。











    卧室 SPATIAL EFFECTS


    床背景墙的设计别具匠心,起伏有序的
    线条如同大提琴的琴弦,奏响G弦上的
    咏叹调,给人以触觉上的温暖联想。考
    究的老式留声唱片机悠扬的演奏着午后
    的惬意,仿若置身于一片远离喧嚣、充
    满诗意的栖居之所。








    材质细节

    上半部分是浅米色硬包或艺术涂料,
    表面带有细腻肌理;下半部分是深胡桃木饰面,
    温润的木质纹理与浅色墙面形成对比,
    提升了空间层次。





     

     




    THREE MAJOR SYSTEMS

    三大系统

    工艺系统             灯光系统             收纳系统



    FIVE MAJOR SECURITY 

    五大保障

    价格保障        质量保障        时间保障        安全保障        效果保障





    用心构筑·美一个家
    BUIID YOUR DREAM HOUSE



    设计&版权@:班威一站式家居智能服务平台

    原创内容,不支持任何形式的转载,翻版必究!


  • 暂无商品信息

精选推荐

方案说明
东西文化碰撞下勾勒的高奢空间 延续了独特的海派质感与腔调, 平稳庄重,细节富于变化,就像繁盛而多样的花朵, 以独特的设计风貌集合城市人文底蕴与主任审美格调。 THE HIGH LUXURY SPACE OUTLINED UNDER THE COLLISION OF EASTERN AND WESTERN CULTURES, CONTINUED THE UNIQUE SHANGHAI TEXTURE AND TONE, STEADY AND SOLEMN,VARIED IN DETAIL, LIKE FLOWERS IN ABUNDANCE AND VARIETY, WITH THE UNIQUE DESIGN STYLE,THE COLLECTION OF URBAN CULTURAL HERITAGE AND DIRECTOR AESTHETIC STYLE.
现代海派-高奢海派

定制理想家 CESTOMIZE YOUR IDEAL HOME

专注居住品质与空间美学,洞察新时代家居生活新需求,以全体系设计、全案全过程服务,打造精准化、智能化、场景化的一站式家装体验,让家居生活更美好。

专属设计师为您量身定制